Характеристики :
Каркас модулю збірно-розбірний, на болтовому з’єднанні:
- Всі дерев’яні елементи каркасу обробляються вогне-біо-захистом;
- Всі елементи каркасу покриваються антикорозійним ґрунтом.
Підлога:
- Підшивка основи оцинкованим гладким листом;
- Гідроізоляційна мембрана. Утеплення мінеральною ватою (базальт);
- Пароізоляційна мембрана;
- Настил підлоги цементно-стружковими плитами (ЦСП);
- Покриття підлоги комерційним лінолеумом (гомогенний).
Стеля:
- Гідроізоляційне покриття з ПВХ мембрани;
- Утеплення мінеральною ватою (базальт), товщиною 150мм.
Зовнішні стіни збірні, з сендвіч-панелей:
- Зовнішня сторона – профільний металевий лист, з полімерним покриттям;
- Гідроізоляційна мембрана;
- Внутрішня сторона – гладкий металевий лист, з полімерним покриттям.
Металопластикові вікна, профіль REHAU:
- Вікно 800х1100мм (поворотно-відкидне).
Освітлення:
- LED світильник, 12W;
- LED світильник, 36W.
Також:
- Введення і розводка холодного водопостачання, відкритим способом;
- Розведення гарячого водопостачання, відкритим способом;
- Розведення й вивід системи каналізації, відкритим способом;
- Унітаз для людей з обмеженими можливостями з інсталяцією, кнопкою змиву та бачком;
- Умивальник, для людей з обмеженими можливостями з інсталяцією;
- Бойлер;
- Трап підлоговий зливний, із сухим засувом;
- Душовий гігієнічний гарнітур із лійкою та змішувачем;
- Поручень для унітазу, відкидний, із нержавіючої сталі;
- Настінний поручень, прямий, стаціонарний, із нержавіючої сталі;
- Поручень для умивальнику, відкидний, із нержавіючої сталі;
- Дзеркало для людей з обмеженими можливостями, поворотне з ручкою;
- Електрична витяжка зі зворотним клапаном (настінна);
- Кондиціонер спліт-система №18;
- Електричний конвектор (настінний), із терморегулятором;
- Пандус із майданчиком та поручнями;
- Маркування для осіб з обмеженими можливостями;
- Стіл складаний на металевому каркасі;
- Стілець складаний МДФ на металевому каркасі;
- Брендування;
- Шафа для переодягання;
- Алюмінієвий захисний ролет.
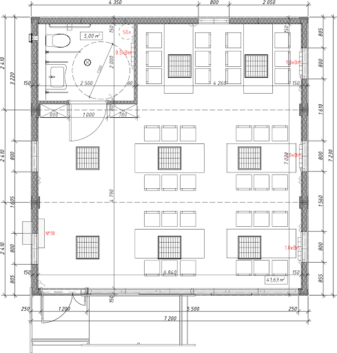
План :




