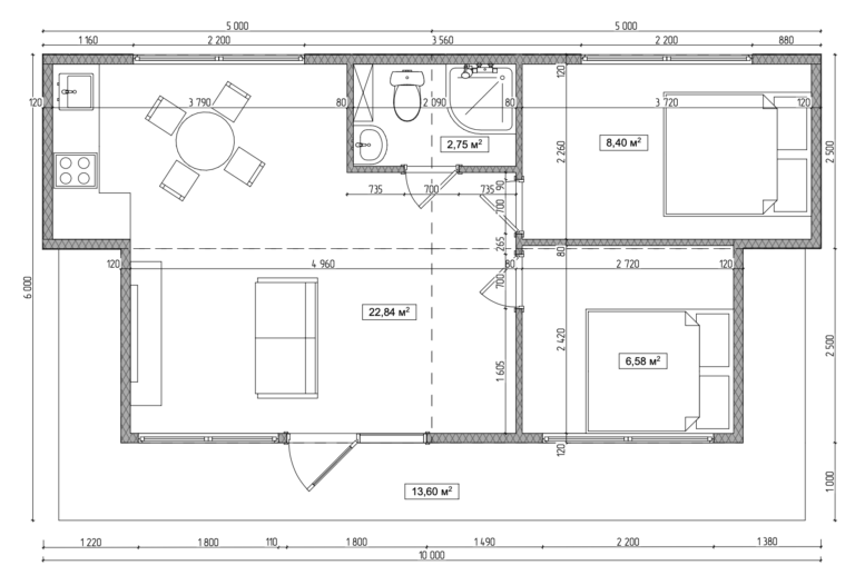
Характеристики :
- Габаритні розміри будівлі (ДхШхВ): 6.785 х 4.0 x 3.0м;
- Висота стелі: 2.5м;
Будівля складається з:
- 2-х модулів розміром 5.0х2.5х2.8м;
- 2-х модулів розміром 4.0х2.5х2.8м;
Тераса складається з:
- 2-х модулів розміром 3.5х0.8х0.2м;
- 1-го модуля розміром 8.0х1.0х,0.2м;
- Поверховість будівлі: 1 поверх;
- Загальна площа будівлі: 58.6 м2;
Основа модулю (підлога):
- Утеплення плитами екструдованого пінополістиролу (XPS) 130мм (всі стики заповнюються монтажною піною); Додаткова обрешітка дерев’яним брусом 50х50мм (сосна);
- Покриття підлоги: підкладка для ламінату. Покриття підлоги ламінатом (колір – дуб світлий). По периметру приміщень – ПВХ плінтус (колір – горіх);
Покрівля (скатна):
- Кількість скатів: два;
- Покриття профільним металевим лист ПК-35, 0.65мм, з полімерним покриттям: RAL7024 (графітовий сірий);
- Карнизний звис 200мм, обшивається профільним металевим листом ПС-10, 0.45мм, з полімерним покриттям обраного кольору;
- Козирок розміром 350х50мм, обшивається декоративною дерев’яною рейкою 60х20мм, колір – дуб темний та HPL-панелями, 6 мм (З чотирьох сторін);
Покриття модулю з плоскою покрівлею (стеля):
- Утеплення покриття: мінеральною ватою, товщиною 150мм;
- Оздоблення стелі: на вибір замовника;
Зовнішні стіни:
- Оздоблення зовнішніх стін HPL-панелями, 6 мм;
- Оздоблення зовнішніх стін декоративною дерев’яною рейкою 60х20мм, колір – дуб темний;
- Утеплення мінеральною ватою, товщиною 100мм. Обрешітка дерев’яним брусом 50х50мм (сосна);
- Оздоблення внутрішніх стін: на вибір замовника;
Перегородки:
-
- Оздоблення перегородок на вибір замовника;
- Каркас перегородок з дерев’яного бруса 50х50мм (сосна) і оцинкованого профілю UW50. Утеплення перегородки мінеральною ватою, товщиною 50мм;
Конструкції алюмінієві, двокамерний склопакет, теплий профіль, колір профілю з зовнішньої сторони – RAL7024 (графітовий сірий):
- Вікно 1800х1500мм (двостулкове, стулка 900мм,глухе) – 1 шт.;
- Вікно 2200х2500мм (двостулкове, стулка 1100мм,глухе) – 3 шт.;
- Вхідна група 1800х2500мм (двері 900х2500мм,цільний склопакет, вертикальна ручка, рейка-замок, доводчик, 4 петлі, дверний упор, вікно 900х2500мм, глухе) – 1 шт.;
Двері міжкімнатні, МДФ:
- Двері міжкімнатні 700х2000, МДФ «Брама» Серія 2.1 (врізана ручка, сантехнічний замок, лиштви, дверний упор, колір – білий) – 1 шт.;
- Двері міжкімнатні 700х2000, МДФ «Брама» Серія 2.1 (врізана ручка-замок, лиштви, дверний упор, колір – білий) – 2 шт.;
План :




