header-logo
  • Продукти
    • Модульні будівлі для бізнесу
      • Модульні офіси
      • Модульний АПК
      • Модульні КПП в Україні
      • Модульний пост охорони
      • Модульна роздягальня
      • Швидкозведені модульні медпункти
    • Модулі для проживання
      • Модульні містечка
      • Житловий модуль
      • Модульні гуртожитки
      • Модульні міні-готелі
    • Модульні будівлі для держави
      • Модульні школи
      • Модульні дитячі садки
      • Модульні їдальні
      • Модульні лікарні
      • Модульна амбулаторія
      • Модульні спортивні та оздоровчі комплекси
      • Модульний ЦНАП
      • Модульні автостанції під ключ
      • Модульні контрольні пункти в’їзду-виїзду
    • Побутові та технічні приміщення
      • Будівельні вагончики та побутівки
      • Швидкомонтовані модульні склади
      • Модульні пральні
      • Модульні операторські
      • Модульні цехи
    • Модульні торгові приміщення
      • Торгові павільйони
      • Модульні магазини
      • Модульні кафе з контейнерів
      • Автомийки
      • Модульні СТО, автосервіс, шиномонтаж
    • Санітарні модулі
      • Модульні душові кабіни та модулі
      • Санітарні модулі (модульні санвузли)
      • Модульні санпропускники в Україні
      • Мобільний лазне-пральний комплекс
      • Модульна лазня
    • Будівництво модульних будинків
      • Модульні будинки
      • Модульні дачні будиночки
      • Літні будиночки
      • Вагончики для дачі
    • Модулі в наявності
  • Типові рішення
  • Реалізовані проєкти
  • Технологія
  • Про нас
    • ГарантіяГарантія
    • Ліцензії та сертифікатиЛіцензії та сертифікати
  • Ціни
  • Контакти

+38 066 108 0 108

Київ

+38 066 108 0 108

Дніпро

+38 098 108 0 108

Пошта

mail@modulex.ua

|

ua

  • UA
  • RU
  • En
  • Pl
  • De
Generic selectors
Exact matches only
Search in title
Search in content
Post Type Selectors
/ Готові рішення / Модульний готель 4549 м2

Модульний готель 4549 м2

  • 1. Категорії
  • 1.1. Автосервіси
  • 1.2. Адміністративно побутові комплекси
  • 1.3. Готові проекти автомийок
  • 1.4. Готові проекти торгових павільйонів
  • 1.5. Гуртожитки
  • 1.6. Міні готелі
  • 1.7. Модульний офіс
  • 1.8. Модульні будинки
  • 1.9. Модульні кафе
  • 1.10. Модульні побутівки
  • 1.11. Проекти модульних будинків
  • 1.12. Торгівельні павільони
  • 1.13. Туалетні модулі
  • 1.14. Житлові модулі
  • 2. Площа
  • 2.1. До 15 м2
  • 2.2. 15 — 20 м2
  • 2.3. 20 — 50 м2
  • 2.4. 50 — 100 м2
  • 2.5. 100 — 150 м2
  • 2.6. 150 — 200 м2
  • 2.7. 200 і більше м2
  • 3. Поверховість
  • 3.1. Одноповерхові
  • 3.2. Двоповерхові
  • 3.3. Триповерхові
phone

Київ

+38 066 108 0 108

Дніпро

+38 098 108 0 108

Пошта

mail@modulex.ua

slider-img
slider-img
slider-img
slider-img
arrow Назад
Вперед arrow

Характеристики :

  • Габаритні розміри будівлі (ДхШхВ): 78.65 х 14.46 x 13.2 м;
  • Висота стелі: 2.8 м;
  • Будівля складається з: 312-ти модулів розміром 6.05 х 2.41х 3.1 м;
  • Поверховість будівлі: 4 поверхи;
  • Загальна площа будівлі: 4549.1м2;
  • Герметизація кількох модулів між собою виконується поліуретановим герметиком;
  • З’єднання кількох модулів між собою виконується болтовими стяжками;

Каркас модулів збірно-розбірний, на болтовому з’єднанні:

  • Периметр каркасу основи виконано з металевого, гнутого спец. профілю висотою 150мм, товщина металу t=3мм; лаги виконано з гнутого металевого швелера 100х40мм, товщина металу t=2мм;
  • Периметр каркасу покриття виконано з металевого, гнутого спец. профілю висотою 185мм, товщина металу t=3мм; лаги покриття виконано з металевого гнутого швелеру 90х40мм, товщина металу t=2мм;
  • Несучі опорні кути виконано з металевого, гнутого спец. профілю – кутик 225х155мм, товщина металу t=3-5мм (залежно від поверху);
  • Каркас основи та покриття обладнані такелажними фітингами, виконаними з листового металу товщиною t=3мм;
  • Всі дерев’яні елементи каркасу обробляються вогне-біо-захистом;
  • Всі елементи каркасу покриваються антикорозійним ґрунтом, в два шари (80мкм);
  • Всі елементи каркасу забарвлюються емаллю в два шари (80мкм), колір: RAL1023 (жовтий);

Основа модулю (підлога):

  • Підшивка основи оцинкованим гладким листом, товщина металу – 0.5мм;
  • Гідроізоляційна мембрана. Утеплення мінеральною ватою (базальт), товщиною 100мм;
  • Пароізоляційна мембрана;
  • Настил підлоги з цементно-стружкових плит (ЦСП) товщиною 20мм;
  • Покриття підлоги комерційним лінолеумом (гомогенний), колір – сіра крихта. По периметру приміщень ПВХ плінтус, колір – сірий;

Покриття модулю з плоскою покрівлею (стеля):

  • Гідроізоляційне покриття з ПВХ мембрани товщиною 1.2мм;
  • Суцільна обрешітка орієнтовано-стружковими плитами (OSB-3) товщиною 12мм;
  • Утеплення мінеральною ватою (скловата), товщиною 150мм;
  • Обрешітка дерев’яним брусом 50х50мм (сосна);
  • Пароізоляційна мембрана;
  • Обрешітка дерев’яною дошкою 100х20мм (сосна);
  • Ламінована ДСП плита 16мм (колір – білий);

Зовнішні стіни збірні, з сендвіч-панелей:

  • Зовнішня сторона – профільний металевий лист 0.45мм, з полімерним покриттям RAL7024 (графітовий сірий);
  • Утеплювач: Мінеральна вата 150мм;
  • Внутрішня сторона – гладкий металевий лист 0.45мм, з полімерним покриттям RAL9003 (білий);

Перегородки збірні, з сендвіч-панелей:

  • З обох сторін – гладкий металевий лист 0.45мм, з полімерним покриттям RAL9003 (білий);
  • Утеплювач: Мінеральна вата 80мм;

Обрамлення:

  • Зовнішнє: гнуті планки з гладкого металевого листа 0.45мм, з полімерним покриттям RAL7024 (графітовий сірий);
  • Внутрішнє: гнуті планки з гладкого металевого листа 0.45мм, з полімерним покриттям RAL9003 (білий);

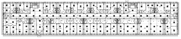
План :

plan

    Розрахувати вартість

    Заповніть форму і ми зв'яжемося з вами найближчим часом.

    * Якщо є файли по проєкту, ви можете їх додати

    Поверховість :

    4

    Кількість модулів :

    312

    Загальна площа :

    4549.1 м2

    form-photo

      Замовити дзвінок

      Заповніть форму і ми зв'яжемося з вами найближчим часом.

      footer-logo

      Модульно-контейнерна технологія. Працюємо по всій Європі.

      • Будівництво модульних будинків
      • Адміністративні будівлі
      • Модульні торгові приміщення
      • Модульні будівлі для бізнесу
      • Каталог
      • Про нас

      Графік роботи

      • Пн-Пт з 9:00 до 18:00
      • Сб — по домовленості
      • Нд — вихідний

      Контакти

      • +38 066 108 0 108
      • +38 098 108 0 108
      • mail@modulex.ua

      Відділ кадрів

      • +38 066 999 7 108
      • +38 066 207 7 108

      Copyright © 2011 – 2025. Модульне будівництво - «Modulex». Усі права захищені.
      Created by Twigel Tech