Характеристики :
Каркас модулю збірно-розбірний, на болтовому з’єднанні:
- Всі дерев’яні елементи каркасу обробляються вогне-біо-захистом;
- Всі елементи каркасу покриваються двокомпонентним цинконаповненим епоксидним ґрунтом.
Підлога:
- Підшивка основи оцинкованим гладким листом;
- Утеплення плитами екструдованого пінополістиролу;
- Пароізоляційна мембрана;
- Настил підлоги цементно-стружковими плитами (ЦСП);
- Покриття підлоги комерційним лінолеумом (гомогенний).
Стеля:
- Гідроізоляційне покриття з ПВХ мембрани;
- Утеплення мінеральною ватою (базальт), товщиною 200мм.
Зовнішні стіни збірні, з сендвіч-панелей:
- Зовнішня сторона – профільний металевий лист, з полімерним покриттям;
- Гідроізоляційна мембрана;
- Утеплення мінеральною ватою (базальт);
- Оздоблення цементно-стружковими плитами (ЦСП).
Металопластикові вікна, профіль REHAU:
- Вікно 700х500мм (відкидне, анти москітна сітка, захисна металева решітка);
- Вікно 600х1200мм (поворотно-відкидне, алюмінієві жалюзі (білі), анти москітна сітка, захисна металева решітка).
Освітлення:
- Світильник з лампою LED 15W.
Також:
- Введення і розводка холодного водопостачання, відкритим способом;
- Розведення гарячого водопостачання, відкритим способом;
- Розведення й вивід системи каналізації, відкритим способом;
- Унітаз-компакт з бачком;
- Раковина, кутова;
- Бойлер;
- Кухонна мийка з нержавіючої сталі;
- Кухонна тумба;
- Кондиціонер спліт-система №7;
- Електричний конвектор (настінний);
- Витяжний вентилятор;
- Шафа для одягу;
- Стіл офісний;
- Крісло поворотне;
- Стіл для прийому їжі;
- Табурет металевий;
- Міні-холодильник;
- Піч СВЧ;
- Турнікет–хвіртка;
- Вогнегасник переносний, вуглекислотний;
- Комплект сертифікатів на матеріали.
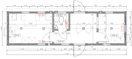
План :




