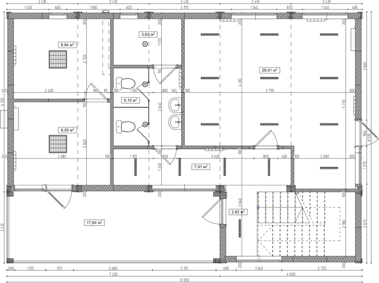
Характеристики :
- Габаритні розміри будівлі (ДхШхВ): 12.05 х 8.51 x 5.6 м;
- Висота стелі: 2.5м;
Будівля складається з:
- 10-ти модулів розміром 6.05х2.41х2.8м;
- 2-х модулів розміром 7.23х2.41х2.8м;
- 2-х модулів розміром 4.82х2.41х2.8м;
- Поверховість будівлі: 2 поверхи;
- Загальна площа споруди: 203.89 м2;
Каркас модулів збірно-розбірний, на болтовому з’єднанні:
- Периметр каркаса основи виконаний з металевого гнутого спец. профілю заввишки 150мм, товщина металу t=3мм; лаги виконані з гнутого металевого швелера 100х40мм, товщина металу t=2мм;
- Периметр каркаса перекриття виконаний з металевого гнутого спец. профілю висотою 185мм, товщина металу t=3мм; лаги перекриття виконані з металевого гнутого швелера 90х40мм, товщина металу t=2мм;
- Несучі опорні кути виконані з металевого, гнутого спец. профілю – куточок 175х155мм, товщина металу t=3мм;
- Каркас підстави і перекриття обладнані такелажними фітингами, виконаними з листового металу, товщиною t=4мм;
- Всі елементи каркаса покриваються антикорозійним ґрунтом, у два шари (40мкм);
- Всі дерев’яні елементи каркаса обробляються вогне-біо-захистом;
- Всі елементи каркаса фарбуються емаллю у два шари (40мкм), колір: RAL9005 (чорний);
Основа модуля (підлога):
- Підшивка основи оцинкованим гладким листом, товщина металу – 0.5мм;
- Утеплення PIR-плитою, завтовшки 100мм (всі стики заповнюються монтажною піною);
- Пароізоляційна мембрана;
- Настил підлоги з цементно-стружкових плит (ЦСП) товщиною 20мм;
- Покриття підлоги напівкомерційним лінолеумом (гетерогенний), колір – паркетна дошка. По периметру кімнат – ПВХ плінтус, колір – горіх;
Основа модуля (підлога в санвузлі):
- Підшивка основи оцинкованим гладким листом, товщина металу – 0.5мм;
- Утеплення PIR-плитою, завтовшки 100мм (всі стики заповнюються монтажною піною);
- Пароізоляційна мембрана;
- Настил підлоги з цементно-стружкових плит (ЦСП) товщиною 20мм;
- Покриття підлоги напівкомерційним лінолеумом (гетерогенний), колір – сіра крихта. По периметру кімнат – ПВХ плінтус, колір – сірий.
Покриття модуля з плоскою покрівлею (стеля):
- Гідроізоляційне покриття з ПВХ мембрани товщиною 1.2мм;
- Суцільна обрешітка орієнтовно-стружковими плитами (SB-3) товщиною 12мм;
- Утеплення мінеральною ватою, товщиною 150мм;
- Обрешітка дерев’яною рейкою 50х25мм (сосна);
- Пароізоляційна мембрана;
- Решетування дерев’яним брусом 40х20мм (сосна);
- Ламінована ДСП 16мм (колір – білий).
Зовнішні стіни збірні, з сендвіч-панелей:
- Зовнішня сторона – профільний металевий лист 0.45мм, з полімерним покриттям колір – RAL7024 (графітовий сірий);
- Утеплювач: мінеральна вата 200мм;
- Внутрішня сторона – гладкий металевий лист 0.45мм, з полімерним покриттям колір – RAL9003 (білий);
- Перегородки збірні, з сендвіч-панелей;
- З обох сторін – гладкий металевий лист 0.45мм, з полімерним покриттям колір – RAL9003 (білий);
- Утеплювач: мінеральна вата 100мм.
Обрамлення:
- Зовнішнє: гнуті планки з гладкого металевого листа 0.45мм, з полімерним покриттям колір – RAL9005 (чорний);
- Внутрішнє: гнуті планки з гладкого металевого листа 0.45мм, з полімерним покриттям колір – RAL9003 (білий).
План :




