Опис і характеристики об’єкту:
- Місце розташування: Чорноморськ , Одеська обл.
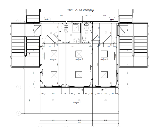
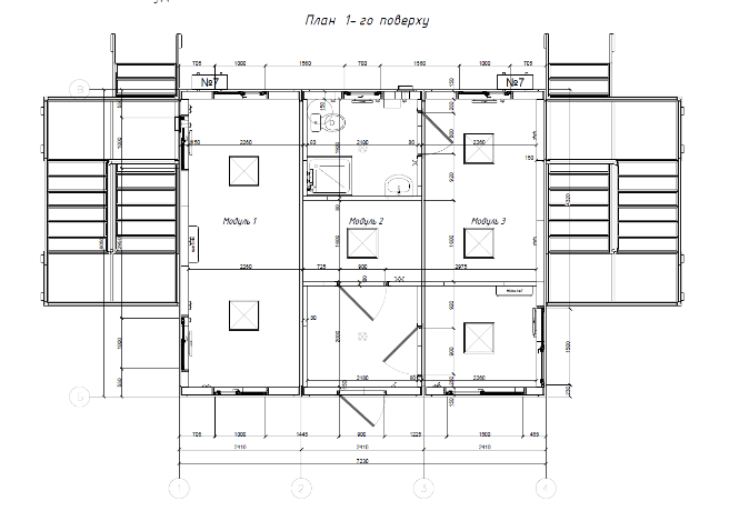
- Площа: 87,5 м²
- Габарити (ДхШхВ): 7,23 м × 6,05 м × 5,7 м
- Призначення: модульний офіс
- Особливості побудови: будівля складається з 6 модулів, з’єднаних між собою болтовими стяжками та герметизованих поліуретановим герметиком. Фасад виконаний із сендвіч-панелей з металевим покриттям.
- Монтаж: здійснювався на підготовленому фундаменті (дорожні плити, виконував замовник).
- Додатково: Будівля обладнана сучасною інженерною інфраструктурою, включаючи електричну розводку, водопостачання, каналізацію та систему кондиціонування. Виконано всі вимоги щодо безпеки та експлуатації.
Цікавий факт:
- Тераса, яка виконана на базі каркасу модулю, розміром 7,23 м × 2,41 м × 5,7 м.
- Настил підлоги тераси виконаний з террасних ДПК дощок, колір “Венге”.
- Тераса обладнана навісом, покриття якого виконане з ПВХ мембрани.
- Поручні виконані з металевої профільної труби, висота 1200 мм.
- Освітлення тераси забезпечують LED світильники.
Безкоштовна комерційна пропозиція за 1 день

