Характеристики :
Каркас модуля сборно-разборный, на болтовом соединении:
- Все элементы каркаса покрываются антикоррозийным грунтом;
- Все элементы каркаса окрашиваются эмалью.
Пол:
- Подшивка основания оцинкованным гладким листом;
- Утепление пенопластовой плитой (все стыки заполняются монтажной пеной);
- Пароизоляционная мембрана;
- Настил пола цементно-стружечными плитами (ЦСП);
- Покрытие пола коммерческим линолеумом (гомогенный).
Потолок:
- Покрытие гладким стальным листом, с порошковой покраской;
- Утепление минеральной ватой (базальт), толщиной 150мм.
Наружные стены сборные, из сэндвич-панелей:
- Профильный металлический лист, с полимерным покрытием;
- Гидроизоляционная мембрана;
- Каркас стены;
- Утепление минеральной ватой (базальт), толщиной. Обрешетка деревянным брусом;
- Пароизоляционная мембрана;
- Ламинированная ДСП плита.
Металлопластиковые окна, профиль REHAU:
- Окно 700х900мм (откидное, анти-москитная сетка).
Двери входные металлические:
- Двери входные, металлические, наружные, световой проем 800х2000мм со стеклопакетом 500×500мм.
Освещение:
- LED светильник, 18W.
Также:
- Ввод и разводка холодного водоснабжения, открытым способом;
- Разводка горячего водоснабжения, открытым способом;
- Разводка и вывод системы канализации, открытым способом;
- Бойлер;
- Штырь заземления;
- Шкаф одежный металлический;
- Кровать двухъярусная трансформер, спальное место;
- Матрас на спальное место;
- Стол раскладной;
- Подставка для стола (с использованием напольного упора-угла, стяжного ремня и петель;
- Металлическая лестница для обслуживания крыши;
- Вешалка настенная металлическая;
- Складная скрытая лестница с площадкой из металлической профильной трубы;
- Электрическая вытяжка с обратным клапаном (настенная);
- Кондиционер сплит-система;
- Зеркало настенное;
- Сушилка для рук из нержавеющей стали;
- Комплект: буржуйка + набор дымохода для печи и крепления;
- Стул выполнен из пластика, мягким сиденьем и ножками из дерева;
- Стол;
- Емкость для воды;
- Кухонная столешница с тумбой под мойку;
- Насосная станция, производительностью;
- Стеллаж офисный.
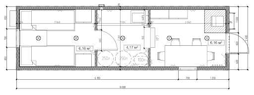
План :




