Характеристики :
Каркас модуля сборно-разборный, на болтовом соединении:
- Все деревянные элементы каркаса обрабатываются огне-био-защитой;
- Все элементы каркаса покрываются антикоррозийным грунтом.
Пол:
- Подшивка основания оцинкованным гладким листом;
- Гидроизоляционная мембрана. Утепление минеральной ватой (базальт);
- Пароизоляционная мембрана;
- Настил пола цементно-стружечными плитами (ЦСП);
- Покрытие пола коммерческим линолеумом (гомогенный).
Потолок:
- Гидроизоляционное покрытие из ПВХ мембраны;
- Утепление минеральной ватой (базальт), толщиной 150мм.
Наружные стены сборные, из сэндвич-панелей:
- Внешняя сторона – профильный металлический лист, с полимерным покрытием;
- Гидроизоляционная мембрана;
- Внутренняя сторона – гладкий металлический лист, с полимерным покрытием.
Металлопластиковые окна, профиль REHAU:
- Окно 800х1100мм (поворотно-откидное).
Освещение:
- LED светильник, 12W;
- LED светильник, 36W.
Также:
- Ввод и разводка холодного водоснабжения, открытым способом;
- Разведение горячего водоснабжения, открытым
- способом; Разведение и вывод системы канализации, открытым способом;
- Унитаз для людей с ограниченными возможностями с инсталляцией, кнопкой смыва и бачком;
- Умывальник, для людей с ограниченными возможностями с инсталляцией;
- Бойлер;
- Трап напольный сливной, с сухим затвором;
- Душевой гигиенический гарнитур с лейкой и смесителем;
- Поручень для унитаза, откидной, из нержавеющей стали;
- Настенный поручень, прямой, стационарный, из нержавеющей стали;
- Поручень для умывальника, откидной, из нержавеющей стали;
- Зеркало для людей с ограниченными возможностями, поворотное с ручкой;
- Электрическая вытяжка с обратным клапаном (настенная);
- Кондиционер сплит-система №18;
- Электрический конвектор (настенный), с терморегулятором;
- Пандус с площадкой и поручнями;
- Маркировка для лиц с ограниченными возможностями;
- Стол складной на металлическом каркасе;
- Стул складной МДФ на металлическом каркасе;
- Брендирование;
- Шкаф для переодевания;
- Алюминиевый защитный ролет.
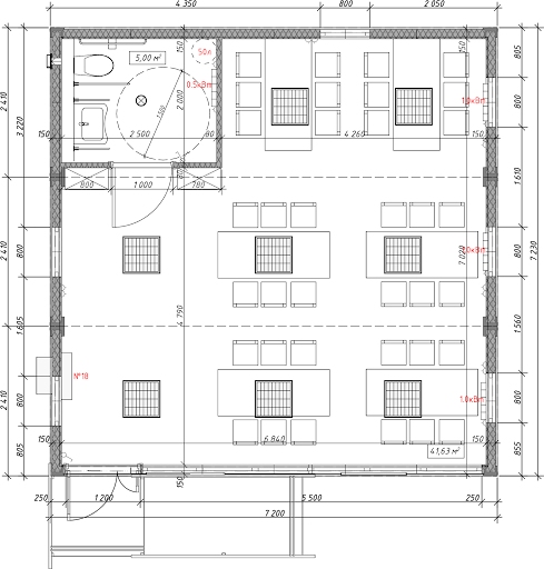
План :


