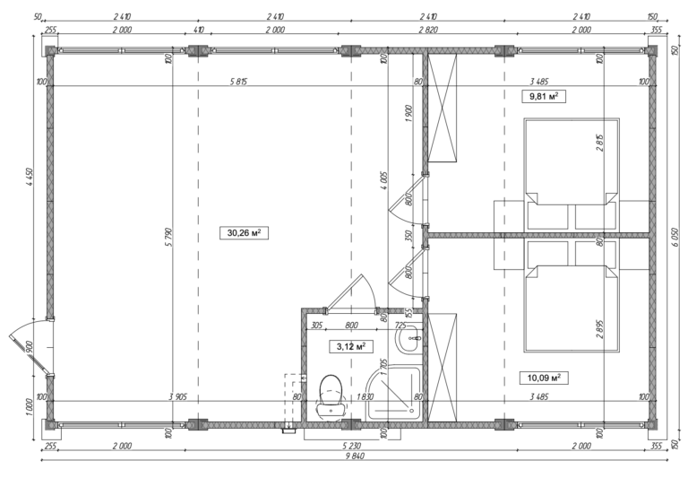
Характеристики :
- размеры: 10,0 х 6 м;
- высота потолков: 2,5м;
- утепление: 10050 мм;
- отделка наружных стен: HPL панели и деревянная рейка;
- окна и двери: металлопластиковые или алюминиевые;
- отопление: электрическое;
- санузел с душем;
- кондиционирование;
- навес для авто;
- вместительность: 2 взрослых, 2 детей (или 4 взрослых).
План :




