Характеристики :
Каркас модуля сборно-разборный, на болтовом соединении:
- Все деревянные элементы каркаса обрабатываются огне-био-защитой;
- Все элементы каркаса покрываются двухкомпонентным цинконаполненным эпоксидным грунтом.
Пол:
- Подшивка основания оцинкованным гладким листом;
- Утепление плитами экструдированного пенополистирола;
- Пароизоляционная мембрана;
- Настил пола цементно-стружечными плитами (ЦСП);
- Покрытие пола коммерческим линолеумом (гомогенный).
Потолок:
- Гидроизоляционное покрытие из ПВХ мембраны;
- Утепление минеральной ватой (базальт), толщиной 200мм.
Наружные стены сборные, из сэндвич-панелей:
- Внешняя сторона – профильный металлический лист, с полимерным покрытием;
- Гидроизоляционная мембрана;
- Утепление минеральной ватой (базальт);
- Отделка цементно-стружечными плитами (ЦСП).
Металлопластиковые окна, профиль REHAU:
- Окно 700х500мм (откидное, анти москитная сетка, защитная металлическая решетка);
- Окно 600х1200мм (поворотно-откидное, алюминиевые жалюзи (белые), анти москитная сетка, защитная металлическая решетка).
Освещение:
- Светильник с лампой LED 15W.
Также:
- Ввод и разводка холодного водоснабжения, открытым способом;
- Разводка горячего водоснабжения, открытым способом;
- Разводка и вывод системы канализации, открытым способом;
- Унитаз-компакт с бачком;
- Раковина, угловая;
- Бойлер;
- Кухонная мойка из нержавеющей стали;
- Кухонная тумба;
- Кондиционер сплит-система №7;
- Электрический конвектор (настенный);
- Вытяжной вентилятор;
- Шкаф для одежды;
- Стол офисный;
- Кресло поворотное;
- Стол для приема пищи;
- Табурет металлический;
- Мини-холодильник;
- Печь СВЧ;
- Турникет-калитка;
- Огнетушитель переносной, углекислотный;
- Комплект сертификатов на материалы.
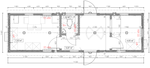
План :




